The Loft
Коттедж The Loft

Эксклюзивный дом в loft стиле

The Loft
Площадь дома - 220 кв.м.

В том числе площадь террас - 33 кв.м

Площадь участка - 10 соток

Стоимость - 350 000 у. е.

ВИДЕО
С высоты птичьего полёта
Планировки
Продуманные и функциональные

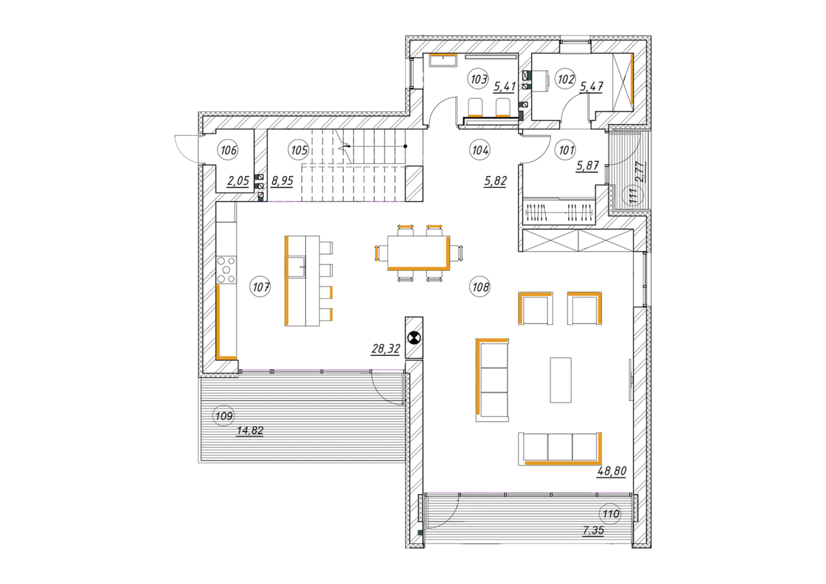
Первый этаж
101. Гардеробная - 5.87 кв.м.
102. Постирочная/Топочная - 5.47 кв.м.
103. Ванная комната - 5.41 кв.м.
104. Холл - 5.82 кв.м.
105. Лестница - 8.95 кв.м.
106. Садовый инвентарь - 2.05 кв.м.
107. Кухня - 28.32 кв.м.
108. Гостиная - 48.80 кв.м.
109. Терраса - 14.82 кв.м.
110. Терраса - 7.35 кв.м.
111. Входная группа - 2.77 кв.м.

Итого на 1-м этаже - 135.62 кв.м.



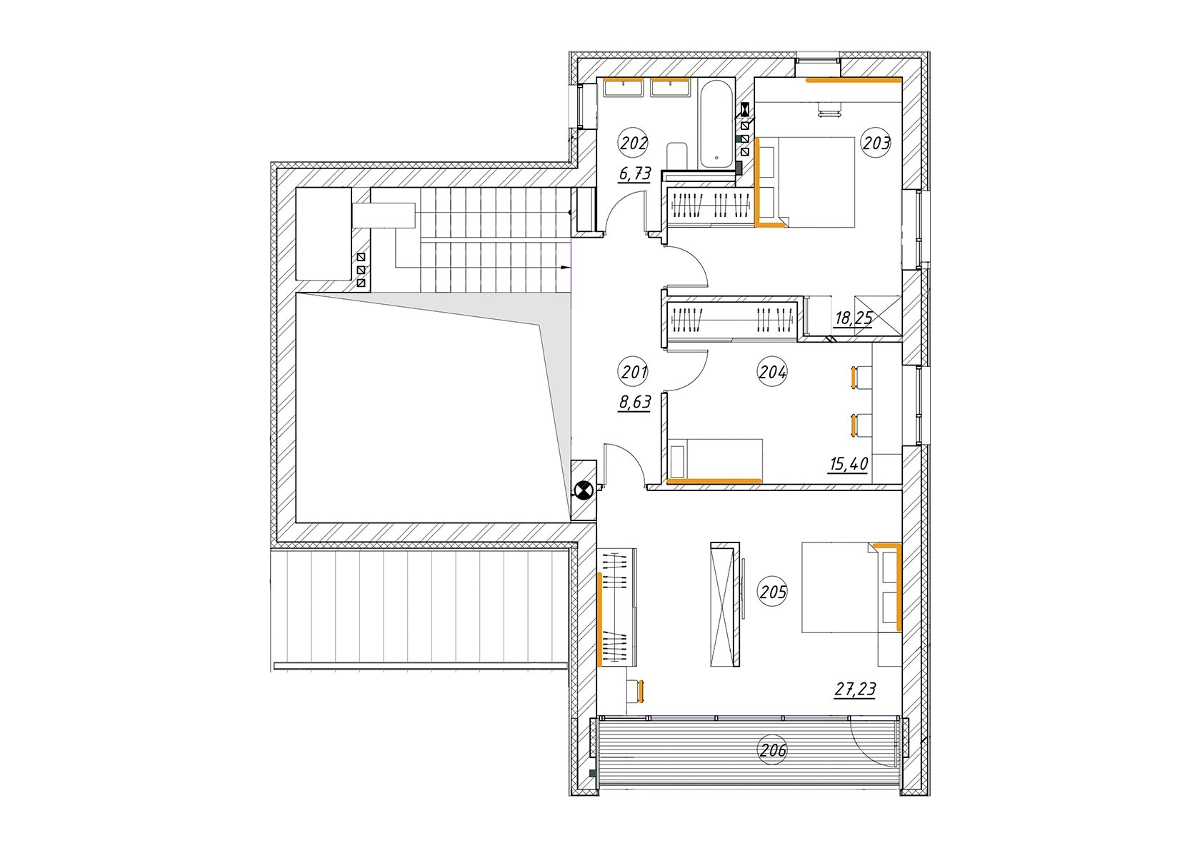
Второй этаж
201. Хол галерея - 8.63 кв.м.
202. Ванная комната - 6.73 кв.м.
203. Детская - 18.25 кв.м
204. Детская - 15.40 кв.м.
205. Спальня - 27.23 кв.м.
206. Балкон - 7.82 кв.м.

Итого на 2-м этаже - 84.04 кв.м.




Еще мы строим
Другие дома в городке
Площадь дома - 200 кв.м.
В том числе террасы - 30 кв.м.
Участок - от 7,5 соток
Площадь дома - 157 кв.м.
В том числе террасы - 27 кв.м.
Участок - от 6 соток
Площадь дома - 133 кв.м.
В том числе террасы - 23 кв.м.
Участок - от 6 соток
Площадь дуплекса - 170 кв.м.
В том числе террасы - 27 кв.м.
Участок - от 3,5 до 4,2 сотки